|
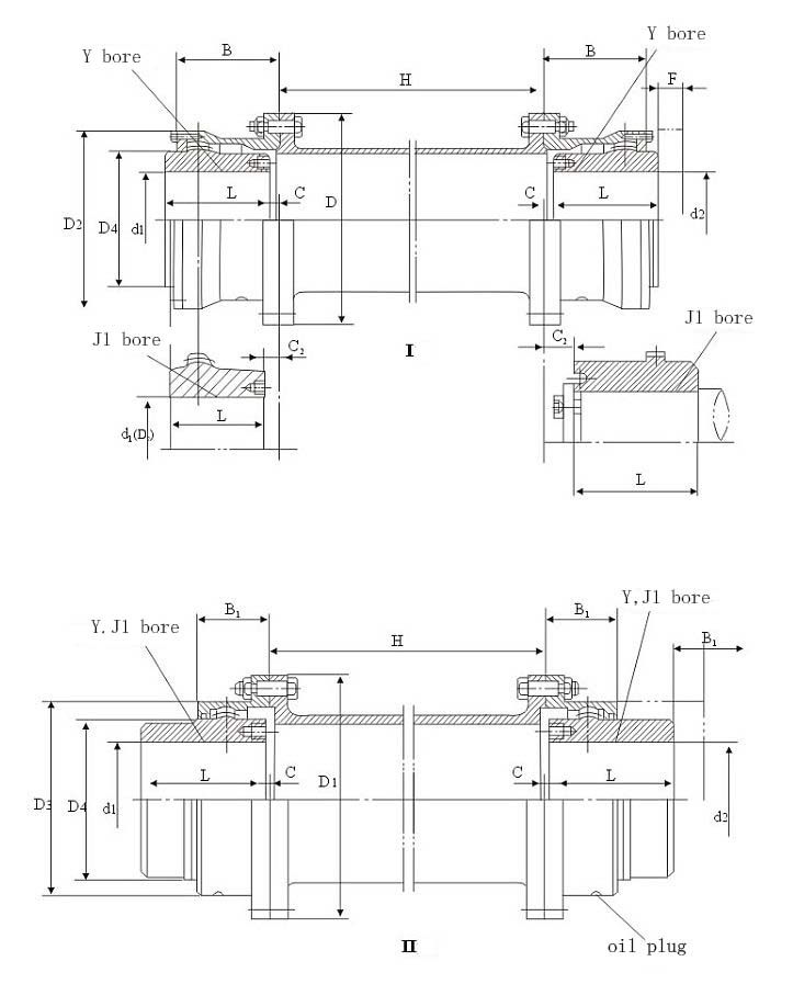
WGT is connected to the middle set of drum-shaped gear coupling, which is a kind of drum-toothed coupling. It is divided into two types: I-type and II-type. WGT is connected to the middle set of drum-shaped gear. The type I of the coupling is a gland type. The advantage is that the outer plate can be inspected and replaced by removing the pressure plate. The disadvantage is that the manufacturing process is called complex weight, high price and high price. The WGT is connected to the middle set of the drum-shaped gear type coupling type II without the gland type, and the advantage is that the price is cheap. The WGT-to-middle drum-shaped gear coupling is a modified version of the toothed coupling. It allows a larger angular displacement than the straight-tooth coupling, which improves the contact condition of the teeth and improves the torque transmission. Capability, long service life, contact state along the tooth width with angular displacement, consisting of internal ring gears with the same number of teeth and flanged half couplings with external teeth. When the WGT is connected with the middle set of drum-shaped gear coupling, the two shafts produce relative angular displacement, and the tooth surfaces of the inner and outer teeth periodically slide axially relative to each other, which inevitably forms tooth surface wear and power consumption. Therefore, the gear coupling The device needs to work in a good and sealed state. The gear coupling has small radial dimension and large bearing capacity. It is often used for shafting transmission under low speed and heavy load conditions. The high precision and dynamic balance gear coupling can be used for high speed transmission. WG type - basic type; WGP type - with brake disc type, suitable for matching with disc brakes; WGZ type - with brake wheel type, suitable for supporting with tile brakes; WGT type - connected to the middle sleeve type, suitable for two-axis long-distance connection, the allowable speed [n] depends on the length and quality of the intermediate sleeve, and the critical speed should be checked; WGC type - vertical installation type, used to connect vertical two-axis shaft drive; Type I--The sealed end cap is of separate type with large tooth spacing, which can allow large radial displacement and can be connected with Y, J1 and Z1 shaft extensions; ![]() ![]() ![]() |




