|
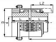
JSB type serpentine spring coupling is referred to as "snake spring coupling" according to JB/T 8869-2000 standard. Unlike JS type serpentine spring coupling, JS type serpentine spring coupling is used for horizontal installation. The JSB type serpentine spring coupling is used for vertical installation.
JSB type serpentine spring coupling is suitable for working conditions such as temperature, humidity, water, steam, dust, sand, oil, acid, alkali, corrosive medium, salt water, radiation and other working conditions. For the working quality of high temperature, low temperature, oil, acid and alkali medium, it is not suitable to use flexible coupling with general rubber as elastic material. The flexible coupling of metal elastic component, such as diaphragm coupling, should be selected. Serpentine spring couplings, etc.
JSB type serpentine spring coupling is mainly used in crusher, crank reciprocating, reducer, metallurgy, mine, crane and other equipment. It has a certain medium and high power transmission shaft system connecting two coaxial lines. It compensates the relative offset and damping and buffering performance of the two axes. The working temperature is -30°C~+150°C, and the nominal torque is 45~800000N.m.
![]() ![]() ![]() ![]() |





